
















































































NT$1590
鋼結構工程建築設計CAD圖紙 3000+套 車間廠房 樓梯 夾層 鋼結構焊接 螺栓CAD圖紙 平面效果圖 辦公樓車間廠房方案(64G 隨身碟出貨 免下載 即插即用)
NT$1590
20000+機械原理動圖 機械結構動畫動態圖 機床夾具實例 動態傳動機構設計 非標自動化參考資料(128G 隨身碟出貨,免下載 即插即看)
NT$1980
草圖大師Sketchup全套視頻教程(移動硬碟160G)景觀室內建築設計 Enscape建模渲染教程 (移動硬碟發貨 無需下載 即插即看)
NT$1590
工地交底 新型施工工藝視頻全解析(128G 隨身碟出貨 無需下載 即插即看)室內設計極簡工藝 暗藏 懸挑 內嵌 收口 懸浮工藝等
NT$1599
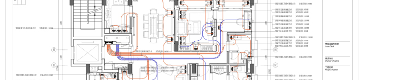
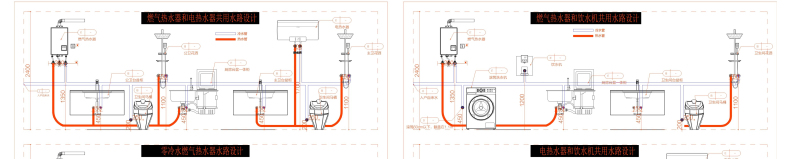
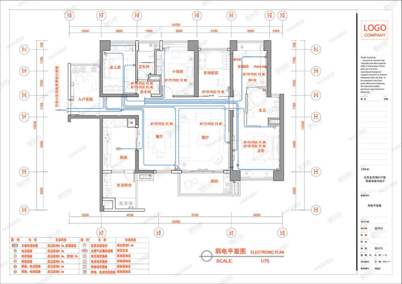
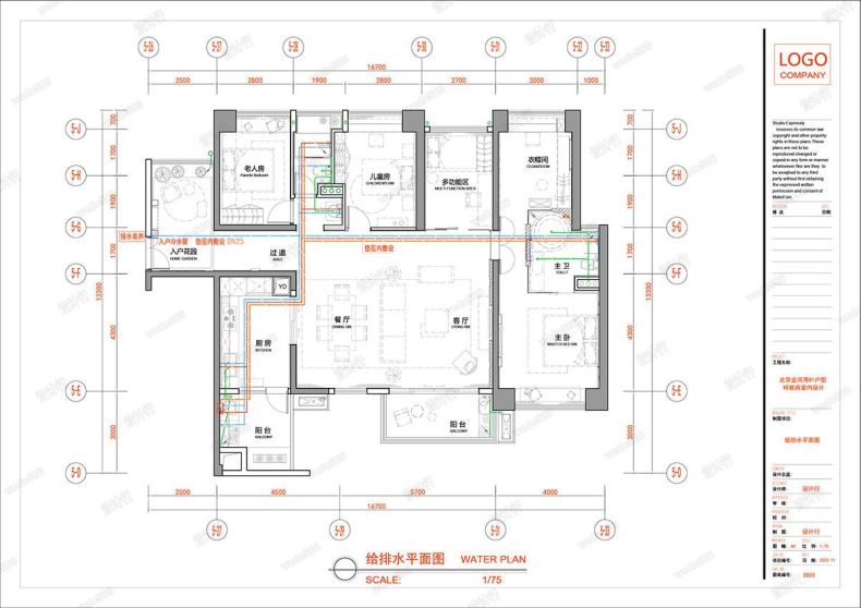
室內設計高級感施工圖繪圖模板(隨身碟128G)無需下載 即插即看 模型空間規範+佈局空間規範+列印樣式+PSD來源檔案+切換佈局窗口
NT$1699
全案設計影片教學 全案設計施工交付系統+物料表+效果圖+施工圖(128G 隨身碟出貨,無需下載 即插即看,手機電腦都能看)
NT$1590
新解構主義空間造型設計圖 概念方案室內效果圖參考案例圖庫( 128G隨身碟出貨 無需下載,即插即看 手機電腦都能看)
NT$1590
工地交底 施工工藝視頻全解(128G 隨身碟出貨 無需下載 即插即看)室內設計暗藏懸挑內嵌收口
NT$1560
精選室內通用CAD節點合集 牆面 頂面 地面 CAD三維圖 SU模型 (隨身碟128G出貨 無需下載 即插即看)
NT$1180
PS PR AE視頻教程 零基礎入門平面修圖視頻剪輯美工設計隨身碟64G
NT$1690
Auto CAD視頻教程 全套教學培訓繪圖製圖 隨身碟64G(送環境工程CAD繪圖快速入門 1冊)